Instalación de una grúa puente de 5 toneladas en las Maldivas
Nuestro equipo debía permanecer en Malé del 23 al 30 de octubre para terminar los trabajos de instalación de una grúa puente de 5 toneladas para uno de nuestros clientes en Malé, pero ¿qué le ocurrió al Sr. Jason durante la semana siguiente?
Sobre el cliente de la grúa puente de Maldivas
El cliente de la grúa es una empresa petrolífera comprometida a preservar su posición de líder en el suministro de productos y servicios petrolíferos de alta calidad a empresas, comunidades y particulares a través de una mano de obra altamente cualificada, al tiempo que cumple con sus obligaciones sociales. Como el lugar de trabajo está en una isla, el Sr. Jason y el ingeniero de la grúa viajera deben viajar en barco al menos dos veces al día, lo que supone una experiencia nueva, emocionante e inolvidable.
Requisitos de elevación
La grúa puente de 5 toneladas se utiliza para el mantenimiento de los barcos petroleros, que siempre están trabajando en el mar para recoger gasolina. Se transportará al almacén de mantenimiento para mantener las piezas principales y los componentes después de cuatro años de trabajo.
Soluciones de grúa puente
Sobre la base de los requisitos de elevación del cliente y la aplicación especializada, se recomienda una grúa puente de una sola viga de 5 toneladas que finalmente ayuda a Yuantai Crane a ganar la confianza del Sr. Solah y la compañía petrolera de Maldivas.
Parámetros principales de la grúa puente
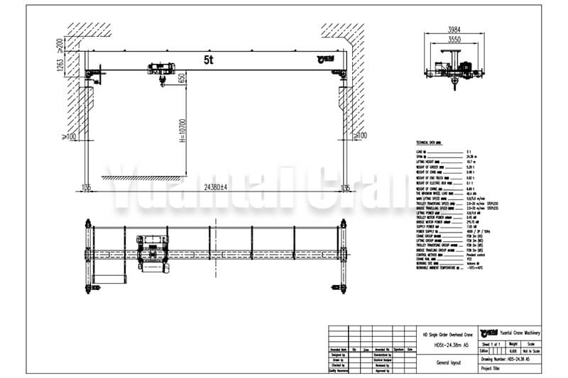
Modo de puente grúa: Puente grúa monorraíl europeo HD
Capacidad del puente grúa: 5 toneladas
Envergadura de la grúa puente: 24,38 metros
Altura de elevación de la grúa puente: 10,7 metros
Alimentación eléctrica de la grúa puente: 400V 50HZ 3P

Ventajas de la grúa puente monoviga de 5 toneladas
La grúa puente monoviga de tipo europeo ofrece características como dimensiones reducidas, peso propio ligero, distancia de restricción mínima del gancho a la pared, menor altura libre y mayor altura de elevación, entre otras, de acuerdo con los conceptos de diseño. En comparación con una grúa puente estándar con polipasto de cable cd/md, la grúa puente de una sola faja de tipo europeo presenta las siguientes ventajas:
- Para empezar, una grúa aérea europea puede ofrecer un espacio de trabajo más efectivo que una grúa estándar, así como un lugar de trabajo más pequeño y con más funciones.
- Debido a su mínimo peso propio, la presión sobre las ruedas de la grúa europea es sustancialmente menor que la de una grúa estándar.
- Por último, y lo que es más importante, una grúa europea puede ahorrar una importante cantidad de dinero en costes iniciales de construcción, costes de calefacción a largo plazo, costes de aire acondicionado y otros costes de mantenimiento.
Las grúas puente monorraíl de tipo europeo se utilizan ampliamente para la manipulación de materiales en maquinaria, metalurgia, petróleo, petroquímica, puertos, ferrocarriles, aviación civil, energía, alimentación, papel, materiales de construcción, electrónica y otras industrias. También suelen emplearse para la manipulación precisa de materiales y el montaje de piezas a gran escala, entre otras cosas.
En general, la grúa puente monoviga de estilo europeo es una buena opción para la manipulación de materiales debido a sus características tales como diseño europeo optimizado, peso propio ligero, presión de carga de ruedas pequeña y tamaño compacto, buena capacidad de conducción, doble velocidad de elevación, control de frecuencia del carro y la grúa, desplazamiento suave y estable, etc.
Con la misma altura de elevación y capacidad de carga, la grúa puente de altura reducida de estilo europeo necesita una altura de construcción menor que la de la grúa puente de tipo tradicional. Por lo tanto, la grúa puente de estilo europeo reducirá el coste de construcción de su edificio o le proporcionará un mayor enfoque de gancho en el taller o instalación dada.
Instalación de la grúa puente de 5 toneladas
La instalación de la grúa puente de 5 toneladas se realiza sin problemas con la preparación adecuada, y la instalación eléctrica es el mayor esfuerzo.
En primer lugar, el Sr. Jason y los ingenieros no pudieron trazar los planos in situ, lo que les obligó a confiar únicamente en sus capacidades técnicas para completar la instalación. Finalmente abordaron el problema con la ayuda del cliente de Maldivas.
El director del proyecto, el Sr. Solah, comunicó al Sr. Jason que estaba muy satisfecho con todo el proceso de instalación de la grúa puente monorraíl de 5 toneladas. Estas son algunas fotos de la instalación de la grúa puente de 5 toneladas.



Obtenga una cotización gratis