Today we will share the story between us and the Mama Sita’s brand in the Philippines, and let’s take a look at how we provided it with a freestanding workstation overhead crane solution and solved its production problems.
Do you know Mama Sita’s?
As a Filipino, I am sure you are aware of Mama Sita’s, you must have seen it on the shelf of a mall or supermarket. It's also possible that it's sitting in your kitchen or next to your oven right now. Mama Sita’s is one of the brands that know the taste of Filipinos best.
Mama Sita’s® is a legacy that spans five generations of fine Filipino cooking. Teresita “Mama Sita” Reyes, the woman who inspired the pioneering line of Filipino sauces and spice mixes, had a vision to bring Philippine flavours to the world.
Beginning with a kare-kare (peanut sauce) mix, a hard-to-prepare Filipino dish and in a cottage, industry operating in the family ancestral home, Mama Sita’s® line of mixes and sauces have grown to world-class recognition, now produced in a modern facility.
Mama Sita’s® has always believed in strict compliance to global food safety standards partnered with rich culinary heritage and adherence to natural ingredients.
So, What is the Story?
Jose from Mama Sita’s company contacted us from the Internet, and shared his freestanding workstation overhead crane needs. The company expected to use the new workstation crane to solve their production problem. We are clear and well noted about the company’s needs.
Our sales and engineers team offered 3 different crane solutions to company for reference, 250 kg freestanding workstation overhead crane solution, 250 Kg portable jib crane solution and 250 kg portable gantry crane solution. Each solution can solve their problems, but the cost and advantages of each solution are different.
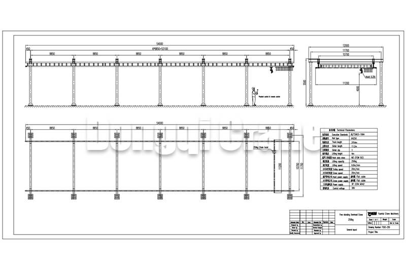
250Kg Freestanding Workstation Overhead Crane Solution
250kg Freestanding Workstation Overhead Crane Solution
- Lifting capacity: 250 kg
- Main girder length: 11.3 meters
- Main girder quantity: 1
- Lifting height: 4 meters
- Track length: 2*54 meters
- Rail type: XH250
- Working duty: M3
- Hoist type: electric chain hoist
- Lifting speed: 8.1 m/min
- Hoist traveling speed: 20 m/min
- Crane traveling speed: 20 m/min
- Power supply: 400V 60Hz 3Phase
- Control voltage: 36 V
- Control mode: pendent control & remote control
Advantages and Disadvantages of Freestanding Workstation Overhead Crane
Advantages of Freestanding Workstation Overhead Crane
- Flexibility: Freestanding workstation overhead cranes can be installed almost anywhere within your production facility. They do not put stress on the building's overhead structure, so installation is usually more straightforward, and these cranes are also easier to relocate in the future.
- Cost-effective: Freestanding workstation overhead cranes are a cost-effective and safe way to carry heavy materials¹. They can be tailored to meet your specific needs and assist you with material processing that is both effective and productive.
- Mobility: Freestanding workstation overhead cranes are the most powerful and portable lifting device. They come in aluminum or steel, with interchangeable heights, struts, and distances, and can be used anywhere.
Disadvantages of Freestanding Workstation Overhead Crane
- Decreased hook height: Compared to double girder overhead lifting systems, freestanding workstation overhead cranes have a decreased hook height.
- Lower rated lifting capacity: Freestanding workstation overhead cranes have a lower rated lifting capacity (less than 15 tons) compared to other types of overhead lifting systems.
- Operator cabs, walkways, and other special features are difficult to incorporate: It is difficult to incorporate operator cabs, walkways, and other special features into freestanding workstation overhead cranes.
- Trolley wheels are mounted on the bottom flange of the girder thereby causing more wear to it: Trolley wheels are mounted on the bottom flange of the girder in freestanding workstation overhead cranes, which causes more wear to it.
250Kg Portable Jib Crane Solution
250kg Portable Jib Crane Solution
- Lifting capacity: 250 kg
- Crane span: 4 meters
- Total arm length: 4.5 meters
- Lifting height: 4 meters
- Total height: 5 meters
- Working duty: A3
- Hoist type: electric chain hoist with motorized trolley
- Lifting speed: 8.1 m/min
- Hoist traveling speed: 13 m/min
- Crane traveling speed: 11 m/min
- Rotating speed: 0.8 r/min
- Rotation angle: 360°
- Power supply: 400V 60Hz 3Phase
- Control voltage: 36 V
- Control mode: pendent control & remote control
Advantages and Disadvantages of Portable Jib Crane
Advantages of Portable Jib Crane
- Portability: The main advantage of a portable jib crane is that it can be easily moved from one location to another. This makes it ideal for use in different work areas or job sites.
- Easy to set up: Portable jib cranes are designed to be easy to set up and take down, which means that they can be quickly deployed when needed.
- Versatility: Portable jib cranes come in different sizes and configurations, which makes them suitable for a wide range of lifting tasks.
- Cost-effective: Compared to other types of cranes, portable jib cranes are generally more affordable.
Disadvantages of Portable Jib Crane
- Limited lifting capacity: Portable jib cranes are typically designed for smaller lifting tasks and may not be suitable for heavier loads.
- Limited reach: The reach of a portable jib crane is limited by the length of its boom, which may not be long enough for some lifting tasks.
- Stability: Portable jib cranes may not be as stable as other types of cranes, especially when used on uneven or unstable ground.
- Maintenance: Like all cranes, portable jib cranes require regular maintenance to ensure that they are safe and reliable to use.
250Kg Portable Gantry Crane Solution
250kg Portable Gantry Crane Solution
- Lifting capacity: 250 kg
- Crane width: 10.5 meters
- Lifting height: 4 meters
- Total height: 5.1 meters
- Working duty: A3
- Hoist type: electric chain hoist with motorized trolley
- Lifting speed: 8.1 m/min
- Hoist traveling speed: 13 m/min
- Crane traveling speed: 11 m/min
- Power supply: 400V 60Hz 3Phase
- Control voltage: 36 V
- Control mode: pendent control & remote control
Advantages and Disadvantages of Portable Gantry Crane
Advantages of Portable Gantry Crane
- Easy to move and transport from one location to another.
- Can be used in various industries and applications.
- Cost-effective compared to permanent cranes.
- Can be assembled and disassembled quickly.
- Can be used in outdoor and indoor environments.
Disadvantages of Portable Gantry Crane
- Limited lifting capacity compared to permanent cranes.
- Not suitable for heavy-duty lifting operations.
- Requires a level surface for stability.
- May not be suitable for long-term use.
- May require additional equipment for certain applications.
After carefully comparing various advantages and disadvantages, Jose finally decided to choose freestanding workstation overhead crane. High security, high efficiency, and can be expanded according to usage requirements in the later stage. At the same time, considering the future application requirements, he increased the lifting capacity to 1 ton. It’s a very wise decision.
1 ton Freestanding Workstation Overhead Crane Solution for Philippines Mama Sita’s
1 ton Freestanding Workstation Overhead Crane Solution
- Lifting capacity: 1 ton
- Main girder length: 10 meters
- Main girder quantity: 1
- Lifting height: 4 meters
- Track length: 2*54 meters
- Rail type: XH1000
- Working duty: M3
- Hoist type: electric chain hoist
- Lifting speed: 7.9 m/min
- Hoist traveling speed: 20 m/min
- Crane traveling speed: 20 m/min
- Power supply: 400V 60Hz 3Phase
- Control voltage: 36 V
- Control mode: pendent control & remote control
- Power supply: 400VAC 50Hz 3Phase
Maybe you are looking for a reliable crane supplier for your business, Yuantai Crane with almost 40 years crane design and manufacture experience will be your guide and help you succeed. We are ready to be a helpful guide who can offer help to you at any time, and walking with you all the way until you successfully solve your problem or complete your project. Contact us with your requirements today.




Get Free Quotation